"La quiete" nella Spina Verde - Como

4 o più locali - Stabile / Palazzo - Posto Auto - Garage

€ 240.000| Mq: 110| Locali: 4| Bagni: 2

Descrizione

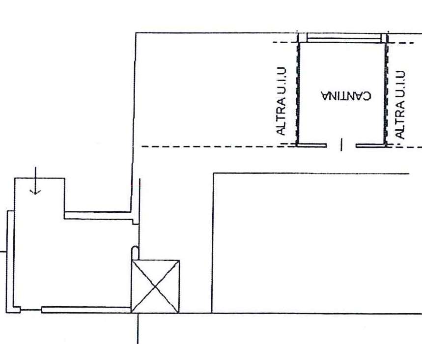
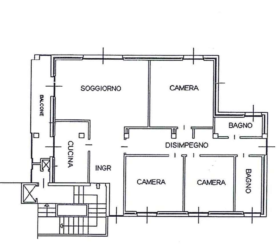
In una delle zone più alte e tranquille di Rebbio, praticamente già all’interno del Parco della Spina Verde, inserito in un contesto residenziale, di poche unità, con un ormai introvabile spazio condominiale interamente cintato, proponiamo in vendita un ampio e luminosissimo quadrilocale con doppi servizi, box, cantina e posto auto. In questa piccola palazzina dei primi anni '70, già dotata di ascensore, interamente realizzata in calcestruzzo armato a vista, la soluzione, posta al piano intermedio, grazie alla sua ottima esposizione libera sui tre lati, est-sud e Ovest, risulta essere straordinariamente luminosa, un aspetto che colpisce fin dal primo ingresso in casa, ed è subito evidente nelle foto qui pubblicate, tutte esposte alla sola luce naturale. Questa proposta è costituita da un classico ingresso che ci accoglie in modo armonioso in casa. La cucina è separata con sbocco sul balcone, perfetto anche per accomodare, sempre in modo discreto, tutti i bidoncini della differenziata. Un grande salone, con doppia esposizione, permette di distinguere la zona pranzo dalla zona salotto tv e trova sia l'uscita sul balcone, sia una grande vetrata con affaccio diretto sul parco della spina verde, dove non è un caso scorgere gli scoiattoli saltare da un ramo all'atro delle piante circostanti. Un favoloso corridoio, così ampio da poter contenere due grandi armadi guardaroba, consente di organizzare e contenere con facilità tutto ciò che serve nella vita quotidiana senza rinunciare all’ordine e ci accompagna verso la zona notte dove troviamo tre camere matrimoniali e rende, questa, una soluzione estremamente funzionale, perfetta per una famiglia numerosa, . Due sono i bagni entrambi finestrati, uno attrezzato con doccia e lavanderia l'altro attrezzato con vasca. L'appartamento è stato oggetto di interventi sia di efficientamento energetico sia di ammodernamento estetico. Nuovi tutti i cassonetti e tapparelle e tutti i serramenti realizzati in pvc a tenuta certificata e tutti con doppia apertura a vasanta. I bagni sono stati completamente rifatti negli ani 90 come anche tutte le porte interne oggi laccate bianche. Originale il parquet in tutti i locali in classica intramontabile essenza rovere, sempre sobria ed elegante. Completano la proprietà un box a piano terra ed una cantina di generose dimensioni. All’interno del complesso, c'è una stanza comune destinata al ricovero delle biciclette, ideale per chi ama vivere il parco e muoversi all’aria aperta. Qui è anche riposto il tavolo condominiale con il BBQ per le grigliate in compagnia nel verde comune. Questa è l'armonia che si respira in questo piccolo complesso residenziale. E' sempre possibile parcheggiare la seconda auto all'interno della proprietà. La posizione, interna e defilata, che dà il nome al Condominio, "La quiete", è veramente strategica, per quanto la logistica, grazie alla vicinanza con la Varesina e con tutti i principali servizi facilmente raggiungibili, scuole, negozi e mezzi pubblici e, Non da poco, l'ospedale Sant'Anna , oltre ai collegamenti veloci verso il centro città e l'autostrada. Sicuramente perfetta sia per i frontalieri sia per chi orbita su Milano.

Specifiche e caratteristiche

Metratura
110
Camere
1
Bagni
2
Box
1
Balconi
2
Anno costruzione
1974

Classe energetica

F | 108,99 kWh/mq
A4
A3
A2
A1
B
C
D
E
F
G

Posizione

Contattaci per informazioni
Invia
Contattaci
Richiedi appuntamento
Visita i nostri uffici